Our Process
1. Discovery & Intake
We’ll kick things off by learning about your space, your needs, and the vision you have in mind. A ballpark estimate will be provided based on linear feet of your floorplan and cabinet specs discussed.
When you’re ready to move forward, we take a small design deposit (5%) to officially save your spot in our queue. From there, we’ll gather project details, appliance information, and—if possible—double-check field measurements. Your design deposit is credited to any cabinet order you place
2. Design Development
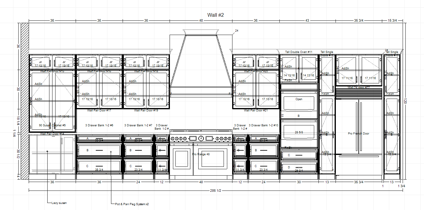
Using what you’ve shared, we’ll create your first round of design drawings and then meet with you to walk through the layout and overall plan.
Here’s what you’ll get:
Your first set of drawings (Version 1)
A design review meeting
An initial pricing estimate
Need changes? No problem—we’ll update your drawings to a Version 2
3. Final Design Sign Off
Once you love the design, you’ll give it the official “thumbs up” and we’ll close out the design phase. This locks in your layout, selections, and pricing.
Next steps:
You’ll confirm details with your contractor or builder
We’ll send a contract with all the details of your project along with your drawings and an invoice for the production deposit
Your project moves into our production schedule
Now the fun part—your cabinetry goes into production! Each piece is built by our in-house team, custom-made just for you. We’ll share a target timeline and send the final invoice before delivery.
4. Production & Prep
5. Delivery Coordination
When your cabinets are ready, we’ll coordinate with you (or your site lead) to make sure everything is set for delivery. We’ll delivery your cabinetry to your site. You may choose to add installation thru our installation team or use your own installer or contractor at your discretion. This is determined in Step 3.
6. Wrap Up & Warranty
Even after delivery, we’re still here for you. We’ll provide care instructions so you can keep your cabinetry looking its best, and everything is covered under our warranty and quality promise. Your cabinets are built to last—and we proudly stand behind them.

Get In Touch
Let us know about your upcoming project, we’d love to chat.